Kompleksowe wykonanie domu 90 m2 z garażem
w stanie deweloperskim – 510 000 zł

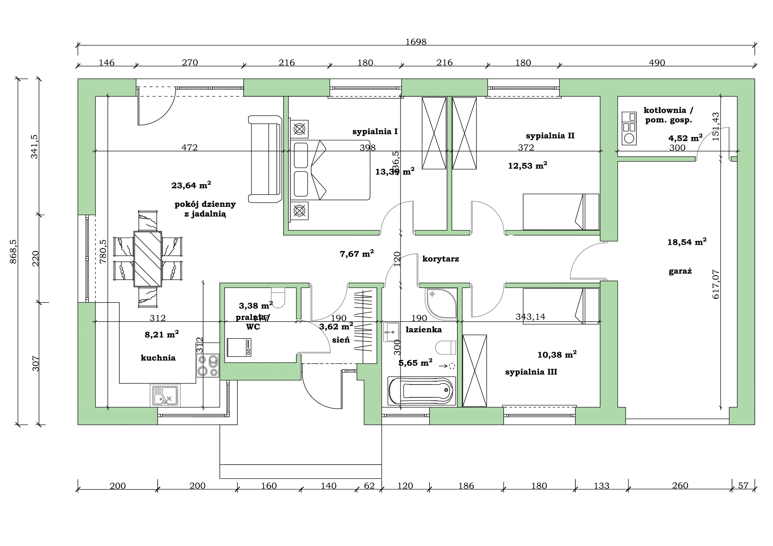
Komfortowy dom z garażem, z salonem i trzema sypialniami, idealny dla rodziny, z możliwością powiększenia powierzchni o dodatkowe 55 m2 poprzez adaptację poddasza.
Cena zawiera:

  1. ocenę warunków gruntowych działki, pełne przygotowanie dokumentacji projektowej i uzyskanie pozwolenia na budowę,

  2. kompleksową realizację domu zgodnie z zatwierdzonym przez Inwestora projektem budowlanym od wytyczenia przez geodetę do stanu deweloperskiego, zgodnego ze standardem wykonania,

  3. cenę wszystkich materiałów budowlanych i robocizny,

  4. nadzór doświadczonego kierownika budowy,

  5. pięcioletnią gwarancję.

Stan surowy zamknięty – 380 000 zł brutto

Stan deweloperski – 510 000 zł brutto

Układ ścian wewnętrznych może być dowolnie zmieniony przez inwestora na etapie projektu. 

Dodatkowo, dom przystosowany jest pod zaadaptowanie poddasza do wykonania w pełni funkcjonalnych pokoi i łazienki. Dzięki temu możliwa, maksymalna powierzchnia domu to 145 m2

Oferowana cena ryczałtowa 510 000 zł brutto zawiera pełne przygotowanie dokumentacji projektowej, uzyskanie pozwolenia na budowę i wybudowanie domu do stanu deweloperskiego zgodnie ze standardem wykończenia. 

Budowa domu mazowieckie
Kontakt